Zurück
Zurück
Mehrfamilienhaus Röschlaubstraße
Weiter
Weiter
Ansicht Süd
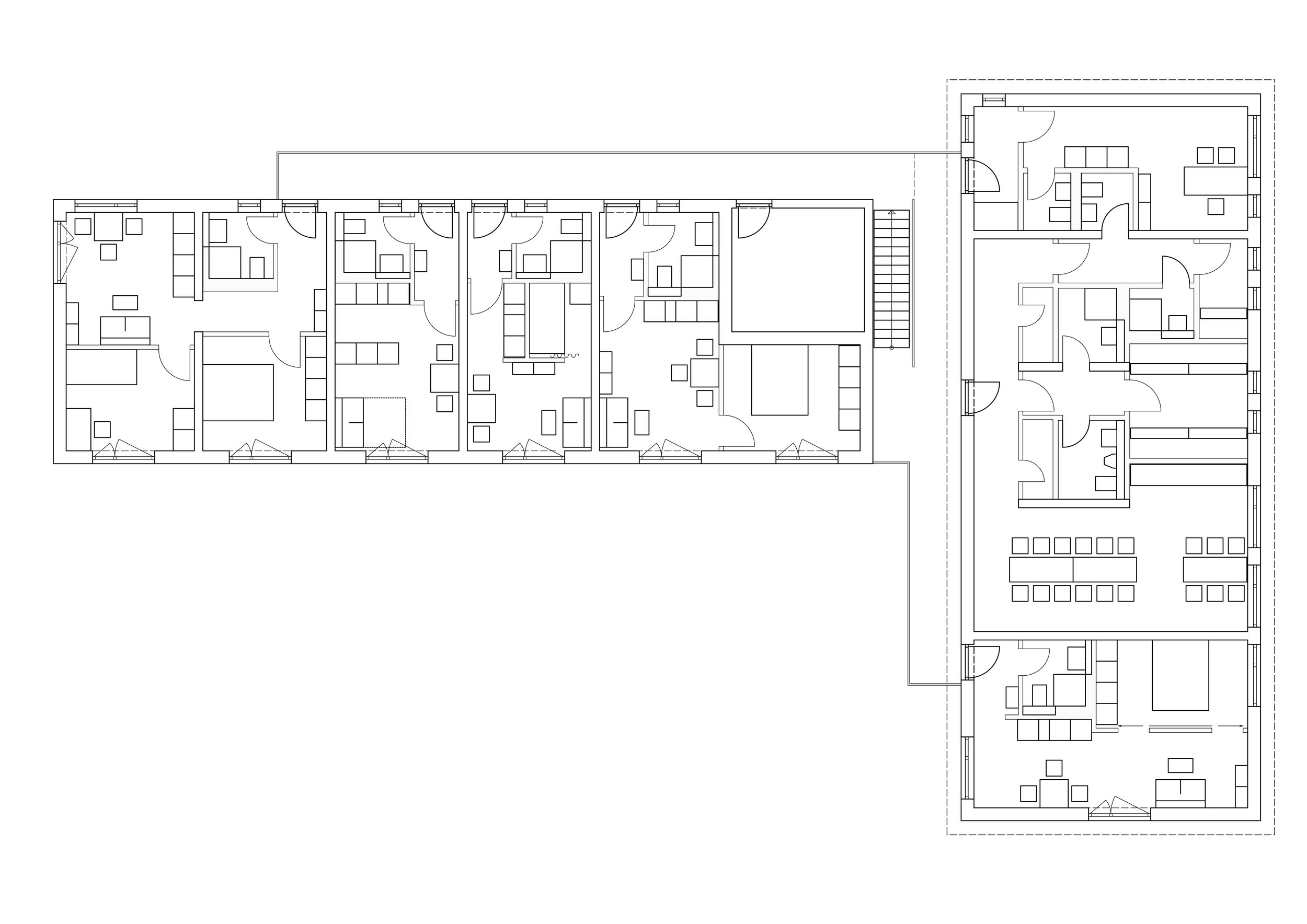
Grundriss Erdgeschoss
Grundriss 1. Obergeschoss
Grundriss 2. Obergeschoss